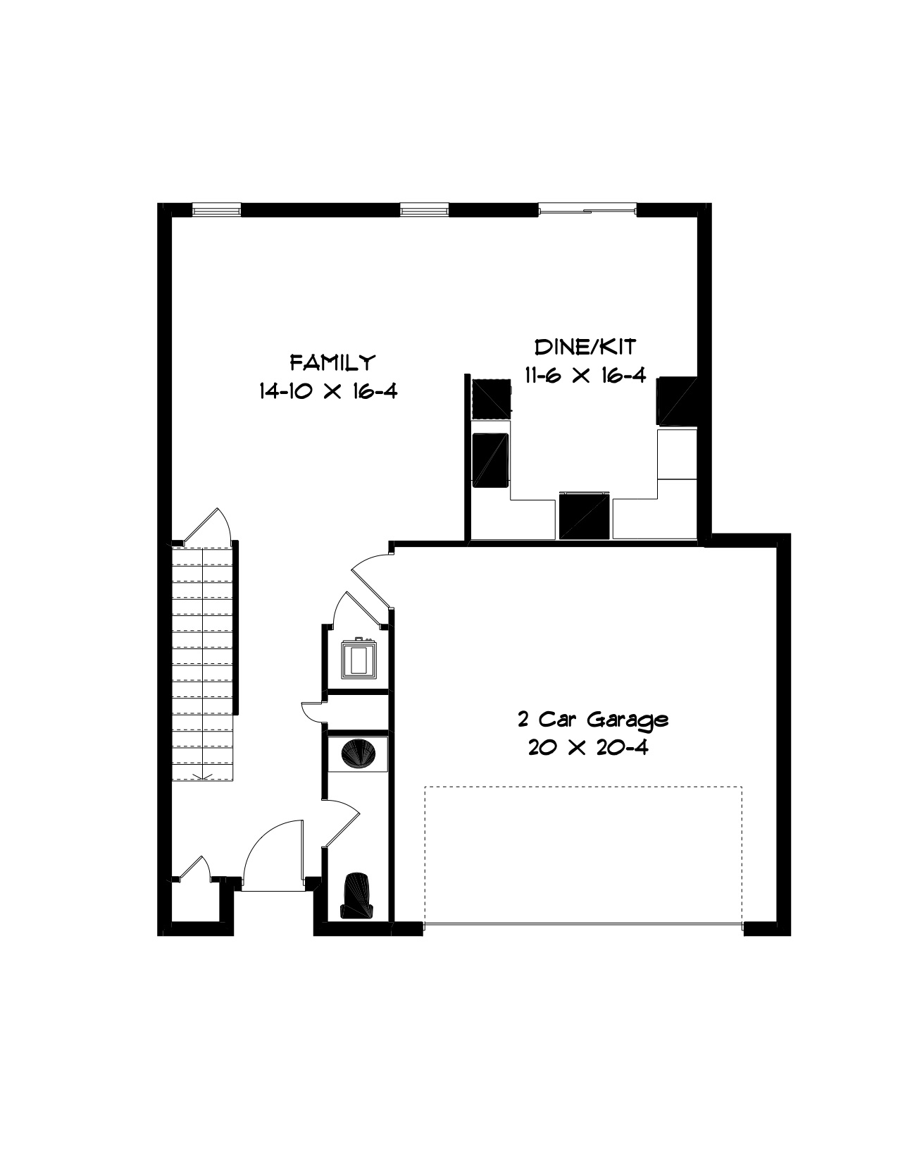
Chesapeake Extended
- 1,709-1850 Square Feet of Living Space
- 3 Bedroom /2.5 Bathroom
- 2 Car Garage
- Large Family Room
- First Floor
- Second Floor
The Chesapeake Extended is a popular two-story plan offering 3 bedrooms, 2 bathrooms and a laundry room all on the second floor. A half bath is located on the first floor, off the entryway. The open floor plan includes a large family room that opens to the breakfast area and kitchen that overlooks the back patio and backyard. The kitchen includes all wood cabinetry, dishwasher, stovetop/oven and disposal. The Chesapeake is traditionally offered with a 2 car attached garage. It is also available with a 1 car garage or an expanded 1.5 car garage.

